Bei LINHARDT Viechtach wurde im Zuge der Planungen der Werkserweiterung um Tubenlinie 10/11 auch die damit notwendige Kapazitätserweiterung und Modernisierung beim Rondenmischen umgesetzt. Dieses zukunftsweisende Projekt verbindet modernste Technik mit ergonomischen Arbeitsplatzlösungen und unterstreicht den Anspruch an höchste Standards hinsichtlich Produktionsqualität sowie Arbeits- und Umweltschutz. Bereits im September 2023 gab es erste Vorschläge zu möglichen Varianten und Gespräche mit Lieferanten.
In der Planungsphase wurden die Anforderungen des Fachbereichs der Produktion mit den Gegebenheiten der baulichen Erweiterung eng aufeinander abgestimmt, um ein möglichst optimales Ergebnis zu erreichen.
Über 259.000 € wurden in die technische Ausrüstung investiert.
Die Hauptlieferanten der Anlagen für den neuen Rondenmischraum:
Fa. SPALECK – Rondenmischer
Fa. ESTA – Absauganlage
Fa. Rösler – Rundmischer
Technische Neuerungen im Überblick
1. SPALECK-Trommeln
Ausstattung und Installation
- – Drei neue SPALECK-Trommeln, ausgestattet mit separaten Schaltschränken und Bedienelementen, wurden auf Scherenhubbühnen montiert. Dieses bei Linhardt seit langem erprobte und bewährte System wurde auch im Konzept des neuen Mischraums umgesetzt. Zusätzlich wurden für jede Mischtrommel vier Wägezellen auf den Scherenhubbühnen zur Füllgewichtsermittlung der Mischtrommeln verbaut.
Die Bedienung erfolgt vor Ort an der jeweiligen Mischtrommel – im Vergleich zum bisherigen Mischraum entfallen die Wege zwischen Schaltschrank und Mischtrommel – das bedeutet eine erhebliche Einsparung hinsichtlich Arbeitszeit und Personalressourcen.
Ein System, das selbst für den Lieferanten Fa. SPALECK neu war – von Linhardt Viechtach grundsätzlich so konzipiert und somit eine technische Neuerung, die auch wegweisend für diesen Bereich ist. - – Im bisherigen Mischraum sind nur zwei Trommeln mit gleicher Größe vorhanden. Der neue Mischraum wurde hinsichtlich Kapazitätserweiterung so geplant, dass eine weitere, kleinere Trommel zusätzlich zur Verfügung steht.
Mit dieser können kleinere Ronden-Losgrößen besser abgemischt werden. Zusätzlich steht mehr Mischkapazität zur Verfügung, die technische Redundanz wird ebenfalls ausgebaut.
- – Der Zugang ist durch Lichtschranken abgesichert, wodurch höchste Sicherheitsstandards gewährleistet werden.
- – Eine digitale Anzeige ermöglicht die präzise Überwachung des Füllgewichts.
Die bisherige Vorgehensweise mit dem Aufaddieren der jeweiligen Gewichtsangaben der Schachtelfüllmengen an Ronden entfällt. Das finale Füllgewicht kann direkt an der Digitalanzeige abgelesen werden. Somit ergibt sich auch hier eine Vereinfachung und Minimierung des Arbeitsaufwands. Zusätzlich führt dieses System zu einer wesentlichen Verbesserung in der Prozesssicherheit. - – Die ergonomische Gestaltung des Arbeitsplatzes sowie optimierte Befüllwinkel und -höhen unterstützen eine effiziente und komfortable Bedienung. Die Grubentiefe und Hubhöhen der Scherenbühnen mit den Trommeln sowie der mögliche Verfahrweg wurden so geplant, dass eine optimale Beladung und Entleerung möglich ist.
Umweltaspekte
Durch den Einsatz der neuen innenbeschichteten Trommeln konnten Lärmemissionen im Vergleich zum bestehenden Rondenmischraum signifikant minimiert werden.
Investitionssumme
126.500 €
——————————————————————–
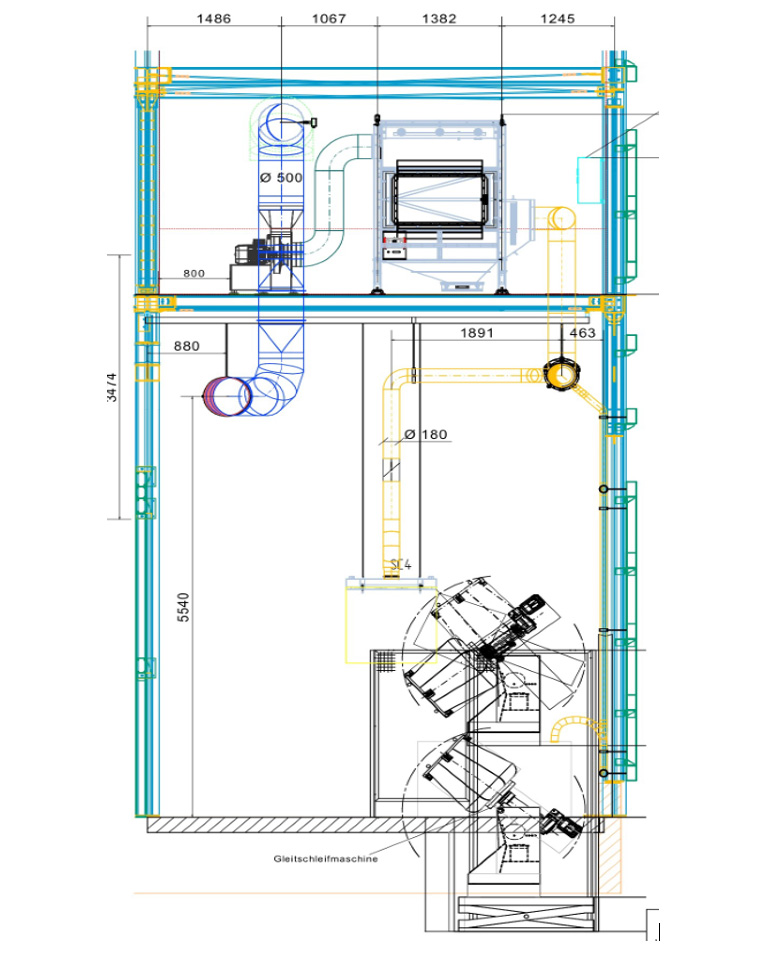
2. Absauganlage ESTA
Technische Merkmale
- – Die neue Absauganlage ESTA ist mit einem Filter und Staubabscheider ausgestattet, der speziell für die Absaugung von Zinkbehanat-Staub konzipiert wurde.
- – Die Absauganlage wurde in der neuen Technikebene installiert.
- – Fest installierte Absaughauben über den einzelnen Mischtrommeln im Rondenmischraum sorgen für eine optimale Staubabsaugung beim Entleervorgang. Im Vergleich zur bisherigen Arbeitsweise entfällt hier das manuelle Positionieren des Schwenkarms mit der Absaughaube – eine deutliche Zeitersparnis. Zusätzlich ergibt sich auch eine Verbesserung hinsichtlich Arbeitssicherheit – im bisherigen Rondenmischraum war der Schwenkarm mit der Absaughaube immer auch direkt im Arbeitsbereich platziert.
- – Die integrierte Filteranlage sorgt im Umluftbetrieb für eine kontinuierliche Reinigung der Raumluft.
Zertifizierung und Umweltschutz
Die Anlage erfüllt sämtliche TÜV- und Umweltschutzauflagen, was unseren hohen Qualitäts- und Sicherheitsstandards entspricht.
Investitionssumme
89.100 €
——————————————————————–
3. Neuer, größerer Rösler-Mischer
Anwendungsbereich und Vorteile
Der neue Mischer ist speziell für kleinere und gelochte Ronden notwendig.
Hier liefert er ein optimiertes Mischergebnis.
- – Durch die größere Mischmenge (im Vergleich zum bisherigen Rösler-Mischer) wird nicht nur der Arbeitsaufwand reduziert, sondern auch die Bereitstellung entsprechend großer Mischmengen in kürzerer Zeit ermöglicht.
- – Ergonomische Lösungen bei der Befüllung und Entleerung sorgen für einen reibungslosen und sicheren Produktionsablauf.
Investitionssumme
43.600 €
Fazit und Ausblick
Die Investition in den neuen Rondenmischraum und die damit verbundene Technik stärkt unsere Position als innovativer und zukunftsorientierter Produktionsstandort. Die neue Anlage verbessert nicht nur Prozessqualität, Ergonomie und Arbeitssicherheit, sondern erfüllt auch alle Umweltschutzanforderungen. Wiederkehrende Arbeitsabläufe werden strukturierter und effizienter, Ressourcen zielgerichtet eingesetzt. Die Arbeitsumgebung im neuen Rondenmischraum mit mehr Platz, großen Fenstern und Tageslicht sowie moderner LED-Beleuchtung bietet zusätzlich eine positive Aufwertung der Arbeitsbedingungen für die Mitarbeiter.
Besonders erwähnenswert ist hier die hervorragende Zusammenarbeit aller Bereiche, vor allem auch im Hinblick darauf, dass die „Großbaustellen“ Hallenerweiterung CF und Tubenlinie 10 natürlich während der Umsetzung im Vordergrund standen.
Der technische Leiter Stefan Ernst bedankt sich bei allen Beteiligten für den großartigen Einsatz bei dem Linhardt-Vorzeigeprojekt.
Sicherlich werden hier auch unsere Kunden bei Besuchen und Audits vor Ort einen positiven Eindruck bekommen.
Für weitere Informationen oder Rückfragen stehen Ihnen die Projektverantwortlichen gerne zur Verfügung.
Â